NEWTON PEARL


Maîtrise d'ouvrage : Tivoli Capital

Équipe : Generous branding, acoustique et conseil, 8-18, THEOP

Programme : Bureaux, coworking

Mission : complète loi MOP

Année : Livraison en juin 2023

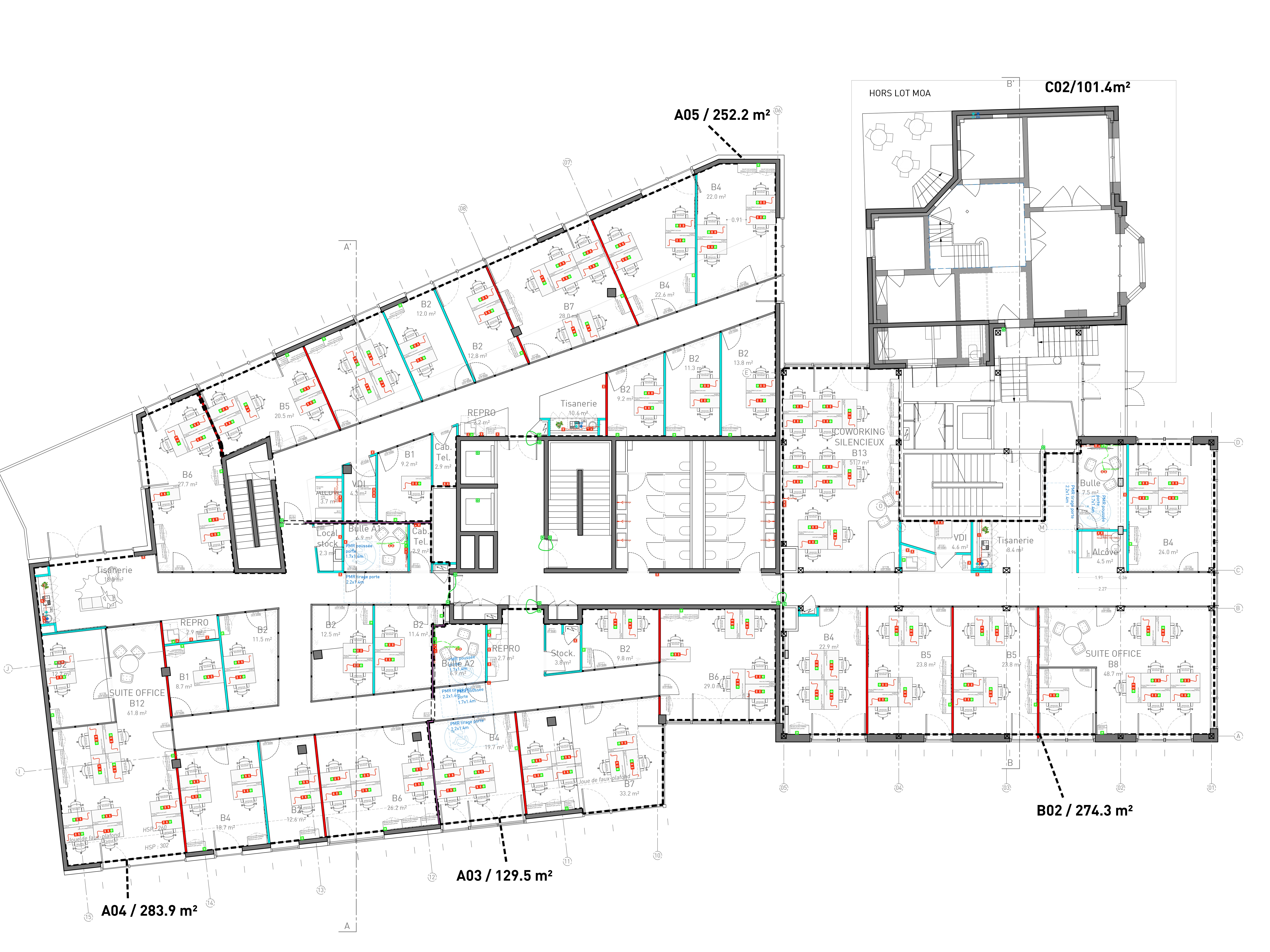
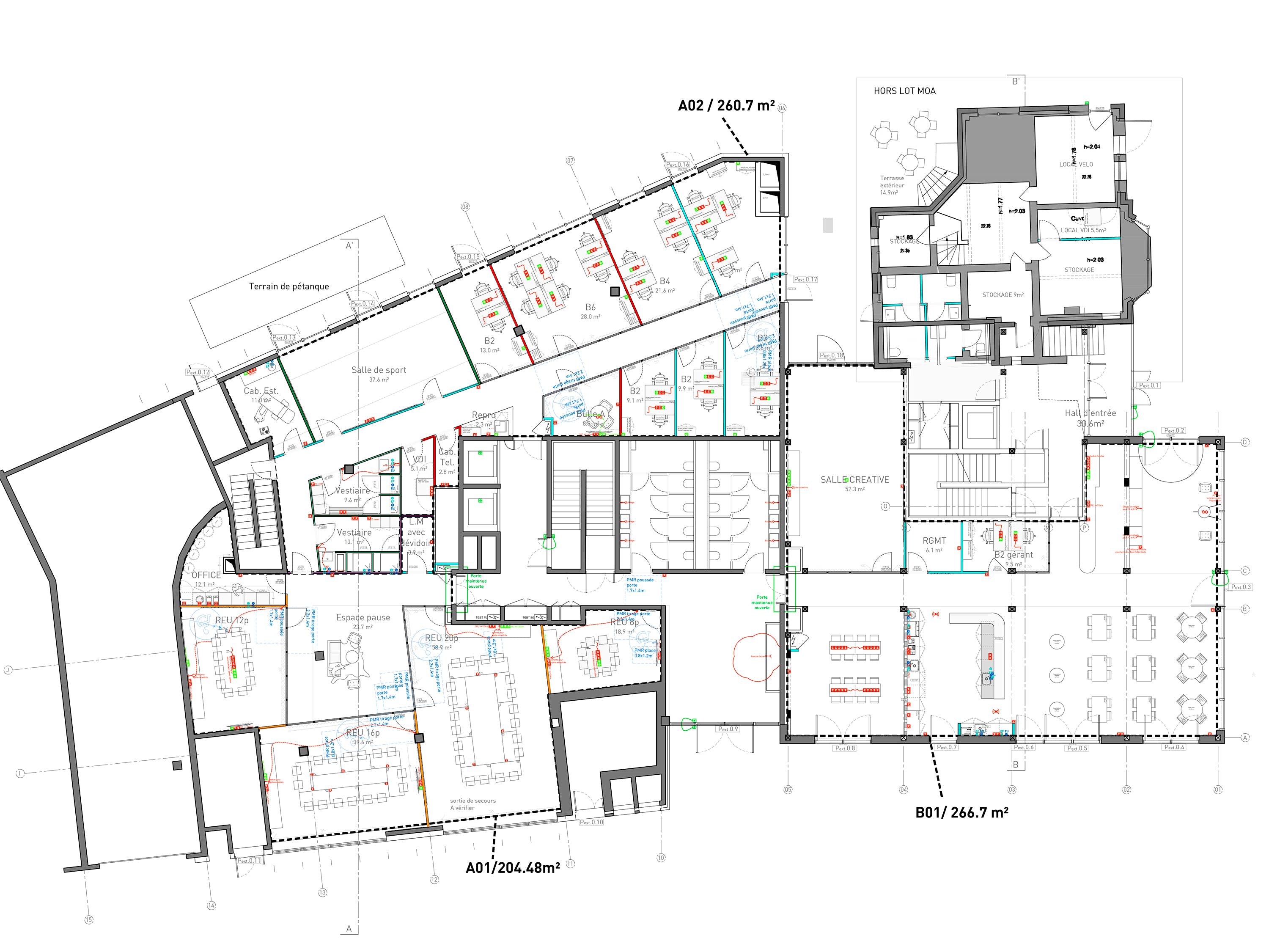
Surface : 4 028 m²

Budget :  3 200 175 HT

Statut : réalisé dans le cadre de l'agence MOA architecture

(www.moa-architecture.com) en tant qu’associé.

Phases : Conception et chantier

Photographe : en cours…

A Marseille, près des plages du Prado, une mère de famille, pleine de tendresse et de générosité, rêvait de construire trois petits havres de paix pour ses enfants, chacun ayant fondé sa propre famille. Son souhait ? Offrir à chacun un refuge, un coin de paradis où la tribu pourrait se retrouver tout en savourant le confort de la vie moderne.

Dans le développement du concept des bureaux de Newton Office, le projet de Marc-en-Baroeuil a la particularité de s’implanter dans un tissu urbain existant, dans un secteur plutôt résidentiel bien qu’à proximité immédiate du tramway. Le site est très végétalisé, et une maison existante est déjà là.

Dans le projet initial, il était prévu que cette maison soit démolie, pour être reconstruite avec une volumétrie identique. Le premier défi a donc été de sécuriser ce bâtiment, afin de travailler avec et de ne pas le démolir. Ses qualités patrimoniales et spatiales étant significatives, nous avons donc mis en valeur ce bâtiment en l’intégrant à la conception générale. 


Principes : intégration de l’existant.

L’intégration de volumes existant permet de créer des espaces uniques, et forcément sur mesure. Entre le projet neuf et la partie existante, il y a un espace résiduel, un lien à inventer. Cet entre-deux devient le hall principal du projet, et donne a lire un espace en double hauteur atypique, puisque la façade existante de la maison en constitue une de ses façades. Le bâtiment neuf, tout en bois, s’y confronte à l’existant.

Dans le bâtiment neuf, les espaces de bureaux sont travaillés pour être extrêmement flexibles et reconvertibles. Les éléments techniques sont calepinés en plafond, de telle façon à pouvoir permettre un maximum de flexibilité dans le cloisonnement. Il n’y a pas de faux-plafond afin de donner un maximum de hauteur, et de laisser apparent les sous-faces des dalles.


Principes : flexibilité et évolutivité en plan, approche itérative, gestion passive de l’énergie

A l‘intérieur de la maison, le volumes de la pièce centrale est assez exceptionnel. Dans la triple hauteur prend place un escalier de circulation qui distribue l’ensemble des pièces. Il n’aurait pas été possible de créer un tel espace pour du bureau avec un projet neuf, notamment pour des règles d’accessibilité ou d’incendie. La réhabilitation a permis de travailler en dérogation, et de proposer un espace de bureau unique.


Principes : dedans-dehors, espace traversant, dilatation spatiale, minimalisme

Le projet est constitué de 3 éléments. La maison existante, un volume en bois, et un volume en béton. Si la partie en béton est assez classique, celle en bois est plus ambitieuse. Totalement en bois, les dalles sont en CLT, permettait d’avoir d’importantes portées. Les poteaux sont en bois massif, et l’escalier en baubuche. Certains voiles verticaux en CLT constituent le contreventement.


Principes : innovation, structure légère 

Grace au système de calepinage des éléments techniques, l’ensemble des dalles sont laissées apparentes en sous-face. Grace à un système d’éclairage indirect, ces sous-faces sont mises en valeur pour donner un côté industriel dans la partie béton, et chaleureux dans la partie bois.

Les réseaux techniques, appareillés et calepinés, sont réalisés en acer galvanisés, donnant à l’ensemble un côté sculptural.


Principes : l’esthétique du brut et l’esthétique de l’apparent