CHAPELLE INTERNATIONAL - LOT E


Maîtrise d'ouvrage : SOGEPROM

BET : Artelia 

Programme : 2 Tours de logements + socle SOHO 

Mission : complète 

Année : Livraison 2019

Surface : 18 000 m² 

Budget : 27 000 000 HT

Statut : Brenac & Gonzalez mandataire (brenac-gonzalez.fr) - réalisé dans le cadre de l'agence MOA architecture (www.moa-architecture.com

en tant que responsable de projet.

Phases : Conception et chantier

Photographe : Takuji Shimmura et Stefan Tuchila

Le projet du lot E, réalisé conjointement par les agences Brenac & Gonzalez & associés et Moa Architecture, est le fruit d'une collaboration harmonieuse. L'ensemble a été conçu pour assurer une cohérence globale, tant dans le choix des matériaux que dans leur mise en œuvre. Les deux émergences dialoguent et s’enrichissent mutuellement, tout en permettant une expression architecturale riche et diversifiée.

Le projet Chapelle International, situé à la frontière entre un territoire en recomposition et un secteur en mutation, incarne une nouvelle polarité dans le cadre du Grand Paris. Il s'agit ici d'une opportunité pour créer une identité propre, échappant à la monotonie des espaces urbains génériques. Inspiré par l’œuvre de Fernand Pouillon, le projet tisse un lien entre tradition et modernité, intégrant les acquis du confort contemporain et une approche respectueuse du paysage urbain.

L’approche de l’AUC pour le lot E reflète un travail de couture urbaine, apportant des réponses spécifiques aux défis du site. Le projet propose une trame sophistiquée, qui s'insère dans la géométrie existante de la rue de la Chapelle, tout en créant sa propre orientation pour maximiser les vues sur le grand paysage. Cette trame croisée permet de différencier les registres architecturaux, de la ville basse, évoquant une échelle domestique, à la ville haute, d’une échelle territoriale. L’émergence du projet se décompose en strates qui établissent des repères clairs tout en articulant une transition fluide avec le socle des SOHO.



Principes : intégration de l’existant, la topographie comme base du projet, cadrage sur le grand paysage.

OPTIMISATION ENVIRONNEMENTALE

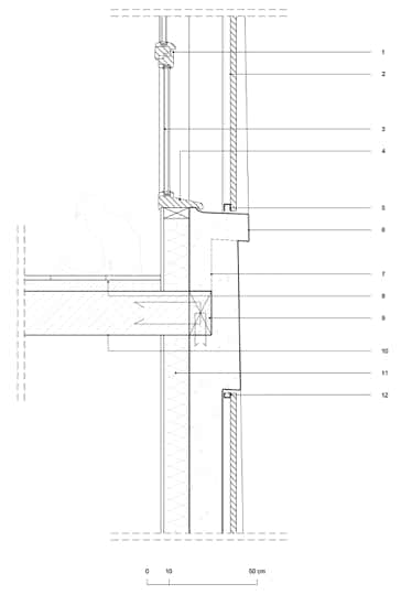
Le béton armé, matériau emblématique du XXe siècle, pose aujourd’hui des défis environnementaux majeurs. Plutôt que de l’abandonner, nous proposons d’en optimiser l’usage, tirant parti de ses propriétés structurelles tout en minimisant son empreinte écologique. Ce projet s'inscrit dans une réflexion globale pour imaginer des alternatives durables à un modèle de construction en pleine mutation. Grace au système structurel en exostructure, nous avons économisé plus d’un tiers de cubage de béton.


FLEXIBILITE

Conçu comme des tours de logements, les émergences répondent aux besoins actuels, tant par la surfaces des logements que par leur dispositions. Toutefois, dans une vision à long terme, la structure a été pensé pour permettre une évolutivité maximale. Derrière les façades porteuses apparentes en façade, les façades des logements en retrait sont non porteuses. De même, certains voiles intérieurs ne sont pas ferraillés, permettant dans le futur de créer des ouvertures pour mutualiser certains espaces, ou même de reconfigurer très largement la composition des façades en retrait.



Principes : flexibilité et évolutivité en plan, approche itérative, gestion passive de l’énergie

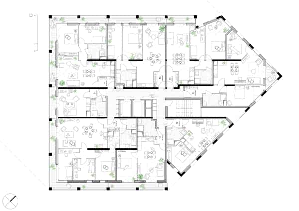
SOCLE SOHO

Le concept SOHO (Small Office/Home Office) associe activité professionnelle et habitation. Ce programme innovant active les rez-de-chaussée dans ce quartier enclavé, favorisant la mixité et l'animation urbaine. Le socle SOHO est traversé par une grande rue intérieure, évoquant les cours parisiennes. Cette rue, artère de desserte et lieu de vie, crée une porosité entre les différents espaces et offre lumière et ouverture aux locaux d'activités et logements.

L’ensemble des halls, des logements et des SOHO, sont disposés en vis-à-vis, accentuant la transparence et le lien entre les deux tours. Le socle est ponctué de 20 locaux d’activité, accessibles directement depuis l’espace public, assurant une animation constante. La façade, composée de béton, établit un repère sensoriel à l’échelle du piéton. La toiture du SOHO, en grande partie végétalisée, constitue une cinquième façade, offrant des espaces verts et intégrant discrètement les équipements techniques.

La rue centrale reliant l’ensemble des circulations internes du projet est un évènement architectural inédit. Elle passe sous les 2 émergences, créant ainsi des espaces couverts en double-hauteur, exploitable par les habitants. Elle débouche sur un jardin central entre les 2 tours, qui se transforme en lieu de rencontre et en espace de vie pour tous les habitants. Un terrain de pétanque est positionné la, donnant un côté domestique et fédérateur du lieu.



Principes : espace traversant, dilatation spatiale

Les deux tours sont conçues comme des « exo-structures », allégeant la masse du bâtiment et offrant une flexibilité maximale pour la reconfiguration des espaces. Cette structure rappelle la « Hancock Tower » de Bruce Graham et Fazlur Khan, permettant une économie de matériaux tout en offrant une architecture durable et adaptable.


TOUR E1

La tour E1 se distingue par une césure centrale, qui divise la masse en deux tourrettes élancées, reliées par un interstice végétalisé et un escalier extérieur. Cette fragmentation dilue la densité et favorise la luminosité des espaces communs. La transition entre le socle SOHO et les tours est assurée par des balcons filants qui créent une skyline basse, en résonance avec l'échelle haussmannienne environnante. Plus haut, la skyline se compose d’un exosquelette en béton préfabriqué blanc, qui dessine des espaces extérieurs généreux, offrant des vues exceptionnelles sur le paysage parisien.


TOUR E2

La tour E2 télescope deux géométries urbaines pour créer une forme irrégulière orientée vers le Sacré-Cœur. Elle se compose de deux entités emboîtées :

La « tour urbaine » s’aligne sur la rue avec une façade en béton brut perforée de fenêtres généreuses. Les ouvertures sont occultables par des volets coulissants en bois, tandis que des loggias dissimulées offrent des espaces extérieurs intimes.

La « tour paysagère » propose une structure fine sur une trame poteau-poutre qui ouvre les espaces intérieurs sur des vues panoramiques. Les façades en retrait créent des extérieurs habitables, prolongeant les pièces à vivre tout en assurant une séparation efficace avec les voisins. Aux derniers étages, la trame de béton se dilate, et les façades en métal reflètent la lumière du ciel, dissolvant la tour dans l’azur.



Principes : innovation, structure légère, exostructure, lévitation 


La matérialité du projet a été la base permettant d’assurer une cohérence entre les 2 tours, qui ont chacune des variations avec un langage commun. Le béton brut préfabriqué, le bois, et la serrurerie en acier fabriquent les composantes principales des différentes compositions architecturales. L’exostructure permettant de mettre en valeur les éléments de béton, et assurant une cohérence esthétique et intemporelle.

Le socle, traité entièrement en béton coulé en place, forme une base solide et continue. Les deux tours communiquent ensemble, comme 2 sœurs. Semblables mais différentes, avec un bel air de famille.


Principes : l’esthétique du brut